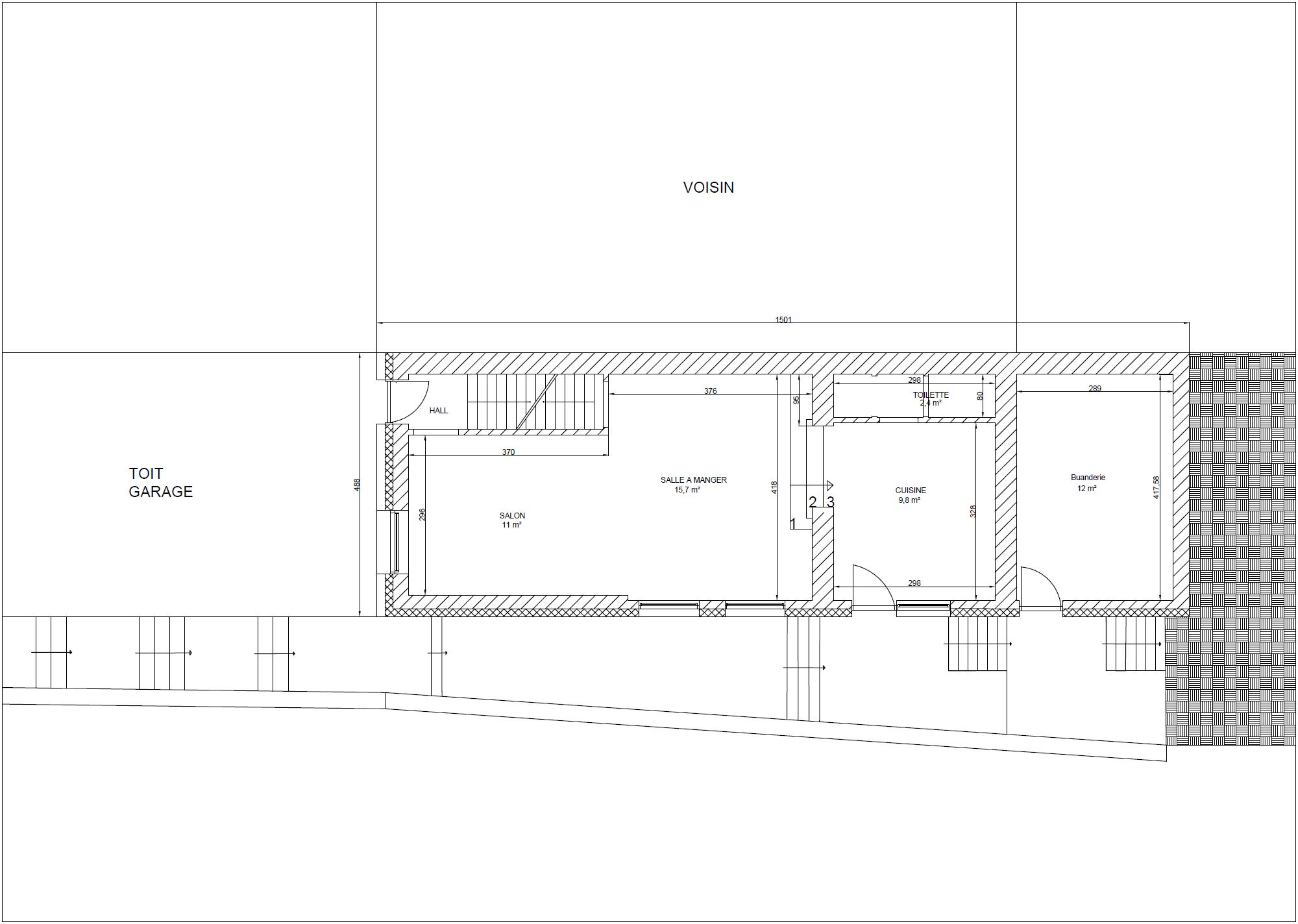
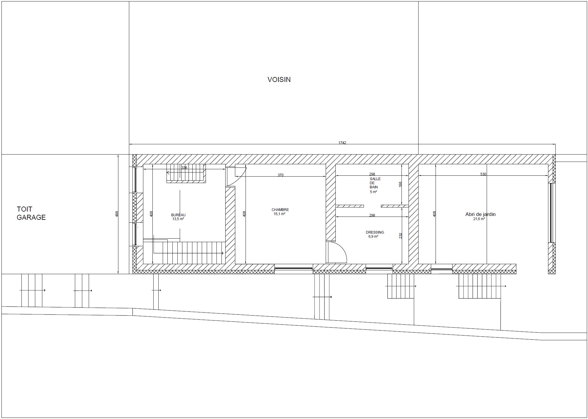
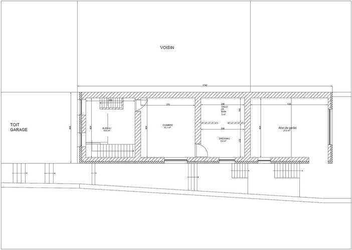
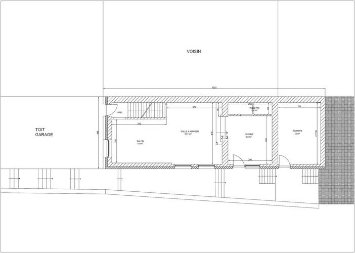
Mesurage et plan maison 3 façades



J’ai réalisé ces plans, coupe et élévations pour un particulier qui souhaitait avoir des plans précis de sa maison.
J’ai également effectué des esquisses d’annexe pour une futur rénovation.




En pratique

Qui suis-je ?


Me contacter

+32 (471) 50 49 11
h.dorys@hd-archi.be