Mesurage et plan appartement



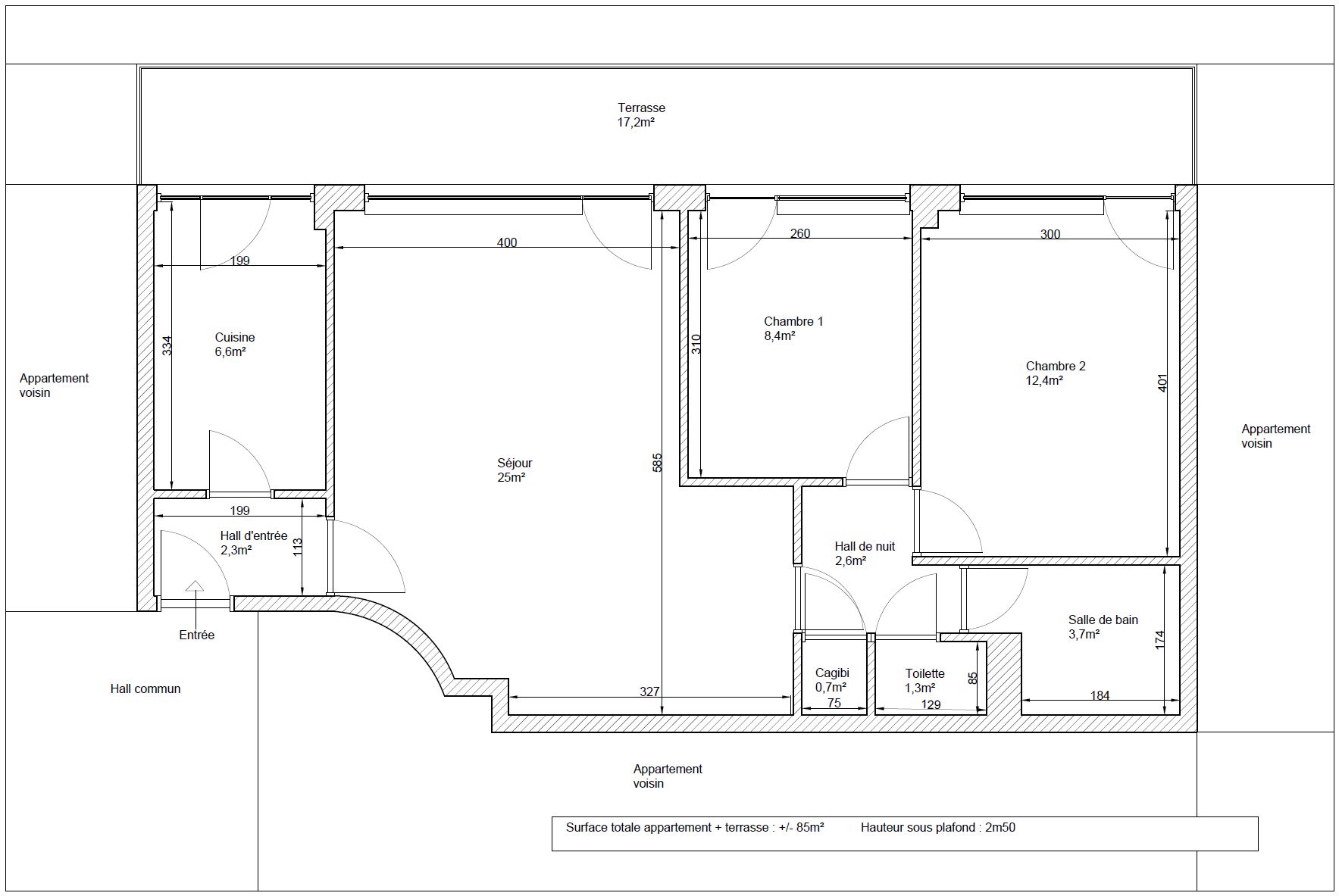
Ce plan a été exécuté dans le but d’enrichir une annonce immobilière pour la location de l’appartement.

Ce plan contient les informations essentielles et a été effectué rapidement.


Appartement

En pratique

Qui suis-je ?


Me contacter

+32 (471) 50 49 11
h.dorys@hd-archi.be